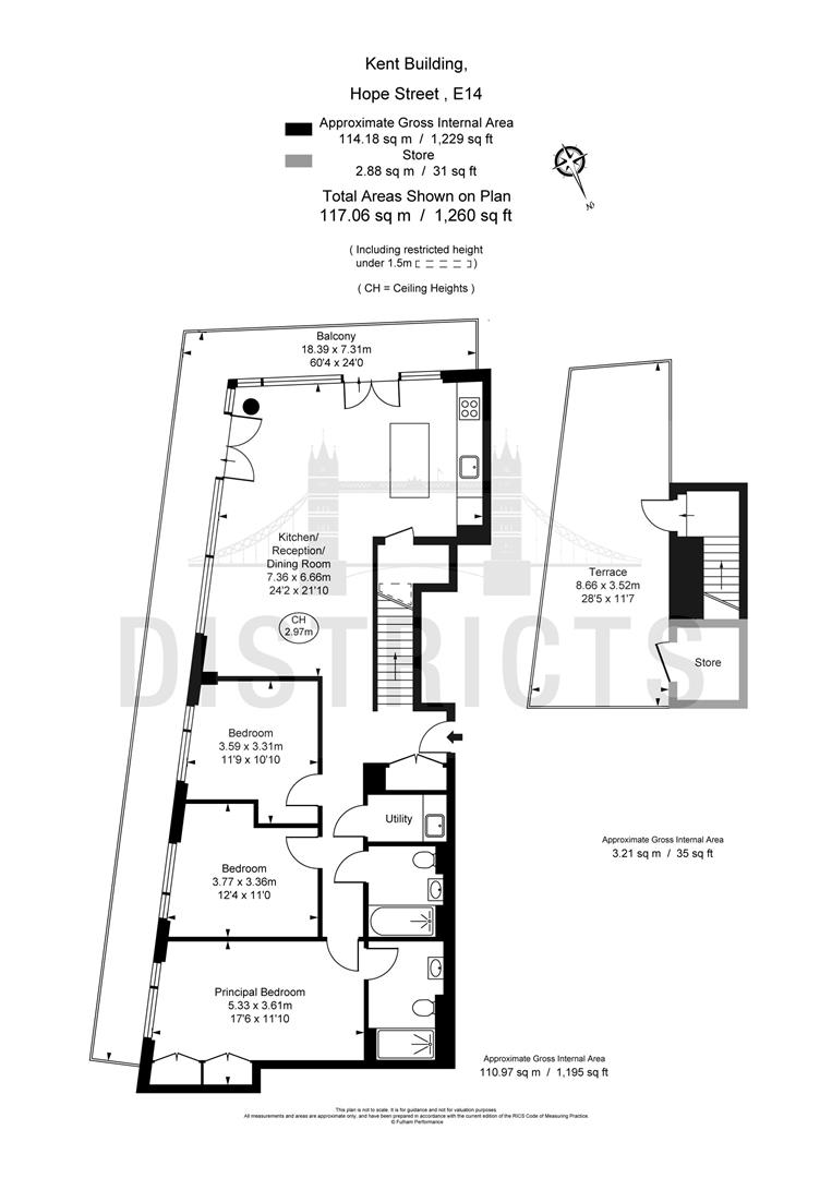
Features include a bright open-plan living space with wraparound terrace, fully fitted modern kitchen, three generous double bedrooms, two bathrooms, separate utility room, electric curtains, installed mood lighting, and plenty of storage throughout.
A standout private rooftop terrace of nearly 300 sq ft provides rare outdoor space with open views.
Residents enjoy 24-hour concierge, swimming pool, gym, and residents’ lounge.
One of the best penthouses available in E14, early viewing advised.
*Photos have been digitally dressed for example purposes.
Council Tax Band: TBC
Minimum contract: 12 months
Change of contract fee: £50
Holding Deposit - £946 - 1 weeks rent, subject to agreed offer.
Electricity supply – Mains | Heating, Hot Water – Communal supply | Water Supply & Sewerage – Mains | Lift Access
To check broadband and mobile phone coverage please visit Ofcom
To check planning permission please visit Tower Hamlets Council Website, Planning & Building Control
- 1228 sqft Max Size
- Long Term
- Penthouse Apartment
- Three Spacious bedrooms
- Large Bright Open Plan Living Area
- 24-Hour Concierge
- 2 Ensuites and 1 Bathroom
- Rare Private Balcony
- Additional Wrap around Balcony
- Wonderful Unobstructed Views
- Fully Furnished
- Residents Gym, Pool/Spa and Lounge
- flat
- Furnished


