The apartment features high specification finishes throughout, integrated Siemens kitchen appliances, bespoke fitted wardrobes, and comfort cooling to ensure a comfortable living environment all year round. Residents benefit from access to Frameworks, an exceptional 8,150 sq ft residents’ club designed to support both lifestyle and wellbeing. Amenities include a 24-hour concierge, a wellness centre with a fully equipped fitness studio, squash court and sauna, along with dedicated co-working areas, creative studios, private meeting rooms, and a state-of-the-art screening room.
There is also an elegant residents’ lounge and a communal terrace complete with a rooftop bar, providing impressive views across the London skyline. The development itself sits beside Regents Canal within three acres of beautifully landscaped gardens, creating a peaceful waterside setting while still being close to the lively character of Broadway Market. Transport links are excellent, with both Cambridge Heath Overground Station and Bethnal Green Underground Station just a short walk away, offering convenient access to Liverpool Street, the City, and the West End.
Minimum contract: 12 months
Council tax band: Tower Hamlets – Band G
Change of contract fee: £50 incl vat.
Lift access | Cladding: EWS1 Certificate available
Holding Deposit -1 weeks rent, subject to agreed offer
Electricity supply – Mains | Cold Water supply – Mains | Sewerage – Mains | Hot water & heating – Mains | Internet: Fibre
To check broadband and mobile phone coverage, visit Ofcom
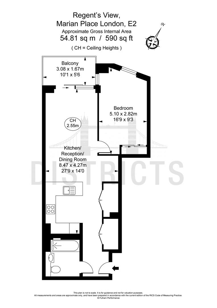
- 590 sqft Max Size
- Long Term
- Spacious 1 bedroom
- Modern Appliances
- Fully furnished
- 24 Hour concierge
- Private balcony
- Brand New Apartment
- Great Location
- Great Transport Links
- flat
- Furnished


