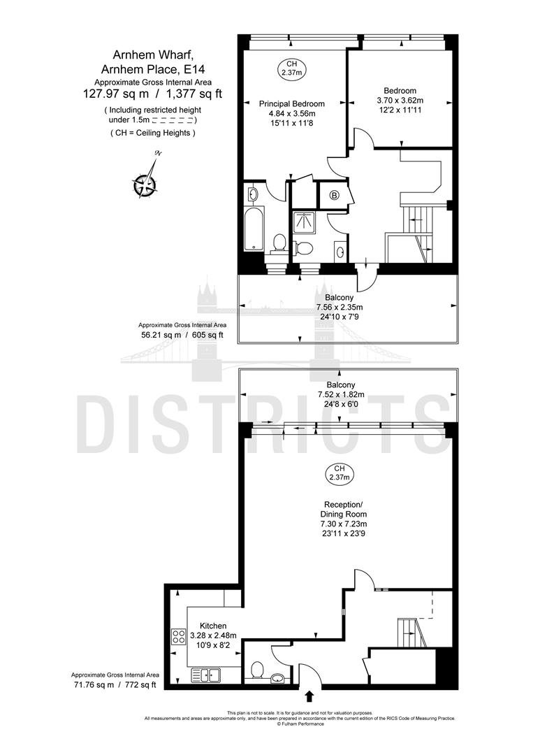
This beautifully presented two-bedroom duplex features expansive interiors, breath-taking views of the River Thames, and two private balconies perfect for relaxing or entertaining company. The property also includes secure off-street parking and is ideally located just moments from the heart of Canary Wharf.
Arnhem Wharf residents within easy reach of world-class shopping, dining, and leisure facilities at Canary Wharf, with the buzzing bars, restaurants, and cinema at West India Quay just a short stroll away. The development enjoys excellent transport connections via South Quay (DLR) and Canary Wharf (Jubilee Line & DLR), providing swift access to the city, West End, and beyond.
Opportunities like this don’t come around often a truly exceptional riverside home in a unique setting.
Minimum contract: 12 months
Council tax band: Tower Hamlets – Band G
Change of contract fee: £50 incl vat.
Cladding: EWS1 Certificate available
Holding Deposit - £690 1 weeks rent, subject to agreed offer
Electricity supply – Mains | Cold Water supply – Mains | Sewerage – Mains | Hot water & heating – Mains | Internet: Fibre | Parking: Yes
To check broadband and mobile phone coverage please visit Ofcom.
To check planning permission please visit Tower Hamlets Council Website, Planning & Building Control
- 1314 sqft Max Size
- Long Term
- Spacious Penthouse Apartment
- Sensational views
- Water Facing
- Private Balcony
- Gated Riverside Development
- Onsite Concierge
- Amazing Transport Links into Canary Wharf and the City
- Flat - Purpose Built
- Un-Furnished


